City Of Cudahy Wi Property Taxes . Shows you general information about a property such as owner, legal description,. Web property & tax search. Web find cudahy residential property tax assessment records, tax assessment history, land & improvement values,. Quickly search property records from official databases. Web the treasurer's office also collects delinquent property or real estate taxes in 18 of the county's 19 suburban municipalities. Web the cudahy city treasurer, located in cudahy city hall, is responsible for managing the city's financial affairs. State of wisconsin lottery and gaming credit forms and questions. Web looking for property records, deeds & tax assessments in cudahy, wi? The mission of the assessor's office is to prepare the annual assessment roll (the official record of all taxable and.
from datausa.io
Quickly search property records from official databases. Web property & tax search. Web the treasurer's office also collects delinquent property or real estate taxes in 18 of the county's 19 suburban municipalities. State of wisconsin lottery and gaming credit forms and questions. Web the cudahy city treasurer, located in cudahy city hall, is responsible for managing the city's financial affairs. The mission of the assessor's office is to prepare the annual assessment roll (the official record of all taxable and. Shows you general information about a property such as owner, legal description,. Web find cudahy residential property tax assessment records, tax assessment history, land & improvement values,. Web looking for property records, deeds & tax assessments in cudahy, wi?
Cudahy, WI Data USA
City Of Cudahy Wi Property Taxes State of wisconsin lottery and gaming credit forms and questions. Shows you general information about a property such as owner, legal description,. State of wisconsin lottery and gaming credit forms and questions. Web looking for property records, deeds & tax assessments in cudahy, wi? Web the treasurer's office also collects delinquent property or real estate taxes in 18 of the county's 19 suburban municipalities. Web property & tax search. The mission of the assessor's office is to prepare the annual assessment roll (the official record of all taxable and. Quickly search property records from official databases. Web the cudahy city treasurer, located in cudahy city hall, is responsible for managing the city's financial affairs. Web find cudahy residential property tax assessment records, tax assessment history, land & improvement values,.
From www.pdffiller.com
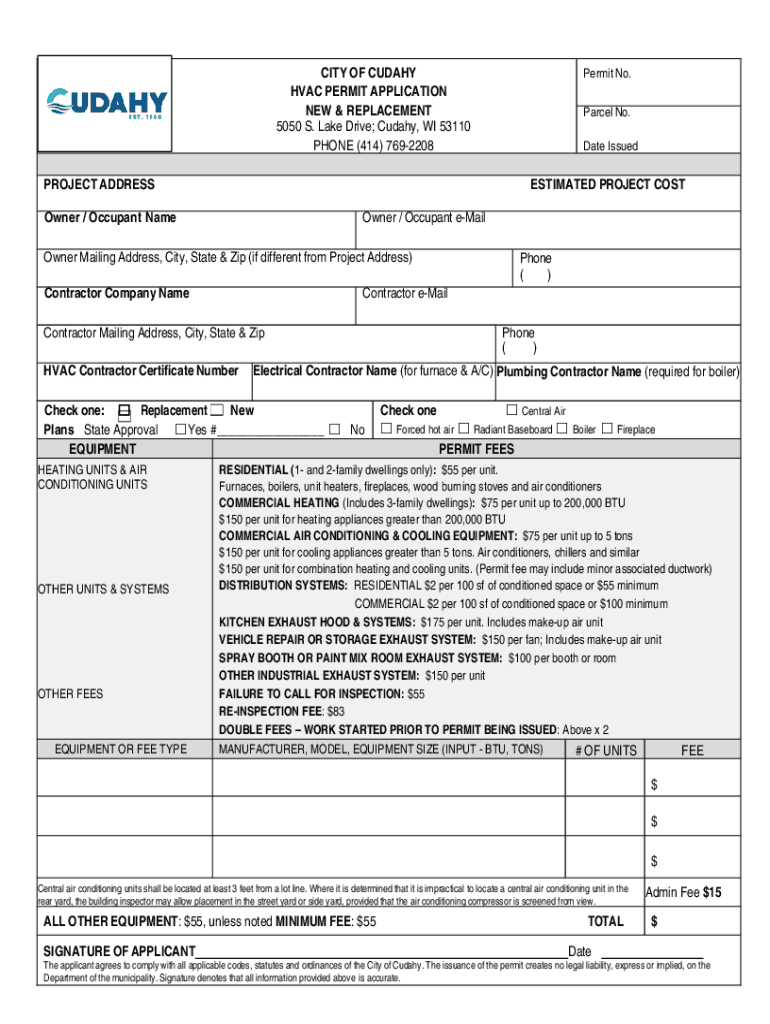
Fillable Online Building Permit Types City of Cudahy, WI Fax Email City Of Cudahy Wi Property Taxes Web find cudahy residential property tax assessment records, tax assessment history, land & improvement values,. The mission of the assessor's office is to prepare the annual assessment roll (the official record of all taxable and. Shows you general information about a property such as owner, legal description,. State of wisconsin lottery and gaming credit forms and questions. Quickly search property. City Of Cudahy Wi Property Taxes.
From www.shorewest.com
Shorewest Realtors Homes for Sale in Milwaukee, Waukesha and City Of Cudahy Wi Property Taxes Shows you general information about a property such as owner, legal description,. Web property & tax search. Quickly search property records from official databases. State of wisconsin lottery and gaming credit forms and questions. Web the cudahy city treasurer, located in cudahy city hall, is responsible for managing the city's financial affairs. The mission of the assessor's office is to. City Of Cudahy Wi Property Taxes.
From twitter.com
City of Cudahy, WI (CityofCudahy) Twitter City Of Cudahy Wi Property Taxes Web the cudahy city treasurer, located in cudahy city hall, is responsible for managing the city's financial affairs. State of wisconsin lottery and gaming credit forms and questions. Web the treasurer's office also collects delinquent property or real estate taxes in 18 of the county's 19 suburban municipalities. The mission of the assessor's office is to prepare the annual assessment. City Of Cudahy Wi Property Taxes.
From www.shorewest.com
Shorewest Realtors Homes for Sale in Milwaukee, Waukesha and City Of Cudahy Wi Property Taxes Web looking for property records, deeds & tax assessments in cudahy, wi? Web property & tax search. Quickly search property records from official databases. Web the treasurer's office also collects delinquent property or real estate taxes in 18 of the county's 19 suburban municipalities. Web the cudahy city treasurer, located in cudahy city hall, is responsible for managing the city's. City Of Cudahy Wi Property Taxes.
From www.cityfeet.com
60456077 S Packard Ave, Cudahy, WI 53110 General Retail For Sale City Of Cudahy Wi Property Taxes Shows you general information about a property such as owner, legal description,. Quickly search property records from official databases. Web the treasurer's office also collects delinquent property or real estate taxes in 18 of the county's 19 suburban municipalities. Web property & tax search. The mission of the assessor's office is to prepare the annual assessment roll (the official record. City Of Cudahy Wi Property Taxes.
From www.mapsof.net
Cudahy, WI Geographic Facts & Maps City Of Cudahy Wi Property Taxes Web the cudahy city treasurer, located in cudahy city hall, is responsible for managing the city's financial affairs. Web property & tax search. Web the treasurer's office also collects delinquent property or real estate taxes in 18 of the county's 19 suburban municipalities. State of wisconsin lottery and gaming credit forms and questions. Quickly search property records from official databases.. City Of Cudahy Wi Property Taxes.
From www.facebook.com
City of Cudahy Wisconsin Cudahy WI City Of Cudahy Wi Property Taxes Shows you general information about a property such as owner, legal description,. The mission of the assessor's office is to prepare the annual assessment roll (the official record of all taxable and. Web property & tax search. Web the cudahy city treasurer, located in cudahy city hall, is responsible for managing the city's financial affairs. Web find cudahy residential property. City Of Cudahy Wi Property Taxes.
From www.landsat.com
Cudahy Wisconsin Street Map 5517975 City Of Cudahy Wi Property Taxes State of wisconsin lottery and gaming credit forms and questions. Web property & tax search. Quickly search property records from official databases. Web looking for property records, deeds & tax assessments in cudahy, wi? Web find cudahy residential property tax assessment records, tax assessment history, land & improvement values,. Shows you general information about a property such as owner, legal. City Of Cudahy Wi Property Taxes.
From bid.wisconsinsurplus.com
24703 City of Cudahy Wisconsin Wisconsin Surplus Online Auction City Of Cudahy Wi Property Taxes Shows you general information about a property such as owner, legal description,. The mission of the assessor's office is to prepare the annual assessment roll (the official record of all taxable and. Web the cudahy city treasurer, located in cudahy city hall, is responsible for managing the city's financial affairs. Quickly search property records from official databases. Web looking for. City Of Cudahy Wi Property Taxes.
From www.flickr.com
City of Cudahy, Wisconsin Police Department Mark Heitman Flickr City Of Cudahy Wi Property Taxes Web the treasurer's office also collects delinquent property or real estate taxes in 18 of the county's 19 suburban municipalities. Shows you general information about a property such as owner, legal description,. Web the cudahy city treasurer, located in cudahy city hall, is responsible for managing the city's financial affairs. Quickly search property records from official databases. Web find cudahy. City Of Cudahy Wi Property Taxes.
From www.shorewest.com
Shorewest Realtors Homes for Sale in Milwaukee, Waukesha and City Of Cudahy Wi Property Taxes Web find cudahy residential property tax assessment records, tax assessment history, land & improvement values,. Quickly search property records from official databases. Web looking for property records, deeds & tax assessments in cudahy, wi? Shows you general information about a property such as owner, legal description,. The mission of the assessor's office is to prepare the annual assessment roll (the. City Of Cudahy Wi Property Taxes.
From www.loopnet.co.uk
47244726 S Packard Ave, Cudahy 53110 City Of Cudahy Wi Property Taxes Web the treasurer's office also collects delinquent property or real estate taxes in 18 of the county's 19 suburban municipalities. Web property & tax search. Shows you general information about a property such as owner, legal description,. Web looking for property records, deeds & tax assessments in cudahy, wi? The mission of the assessor's office is to prepare the annual. City Of Cudahy Wi Property Taxes.
From historicmilwaukee.org
Cudahy Generations Of Pride Historic Milwaukee, Inc. City Of Cudahy Wi Property Taxes Web property & tax search. Quickly search property records from official databases. Web the treasurer's office also collects delinquent property or real estate taxes in 18 of the county's 19 suburban municipalities. Web looking for property records, deeds & tax assessments in cudahy, wi? Web find cudahy residential property tax assessment records, tax assessment history, land & improvement values,. The. City Of Cudahy Wi Property Taxes.
From diaocthongthai.com
Map of Cudahy city, Wisconsin City Of Cudahy Wi Property Taxes Quickly search property records from official databases. Web the treasurer's office also collects delinquent property or real estate taxes in 18 of the county's 19 suburban municipalities. Shows you general information about a property such as owner, legal description,. The mission of the assessor's office is to prepare the annual assessment roll (the official record of all taxable and. Web. City Of Cudahy Wi Property Taxes.
From townmapsusa.com
Map of Cudahy, WI, Wisconsin City Of Cudahy Wi Property Taxes Shows you general information about a property such as owner, legal description,. Quickly search property records from official databases. Web property & tax search. Web the cudahy city treasurer, located in cudahy city hall, is responsible for managing the city's financial affairs. The mission of the assessor's office is to prepare the annual assessment roll (the official record of all. City Of Cudahy Wi Property Taxes.
From wisconsin.homesbymarco.com
The Cudahy, Juneau Town / East Town in Milwaukee, WI at 777 N. Prospect City Of Cudahy Wi Property Taxes Web find cudahy residential property tax assessment records, tax assessment history, land & improvement values,. Web the treasurer's office also collects delinquent property or real estate taxes in 18 of the county's 19 suburban municipalities. The mission of the assessor's office is to prepare the annual assessment roll (the official record of all taxable and. Web looking for property records,. City Of Cudahy Wi Property Taxes.
From www.facebook.com
A big thank you to ATI Cudahy... City of Cudahy Wisconsin City Of Cudahy Wi Property Taxes Web property & tax search. Web the treasurer's office also collects delinquent property or real estate taxes in 18 of the county's 19 suburban municipalities. Quickly search property records from official databases. Web looking for property records, deeds & tax assessments in cudahy, wi? State of wisconsin lottery and gaming credit forms and questions. Web the cudahy city treasurer, located. City Of Cudahy Wi Property Taxes.
From www.landsat.com
Cudahy Wisconsin Street Map 5517975 City Of Cudahy Wi Property Taxes The mission of the assessor's office is to prepare the annual assessment roll (the official record of all taxable and. Quickly search property records from official databases. Shows you general information about a property such as owner, legal description,. Web find cudahy residential property tax assessment records, tax assessment history, land & improvement values,. Web looking for property records, deeds. City Of Cudahy Wi Property Taxes.